8 (800) 775-71-93 info@trade-house.ru

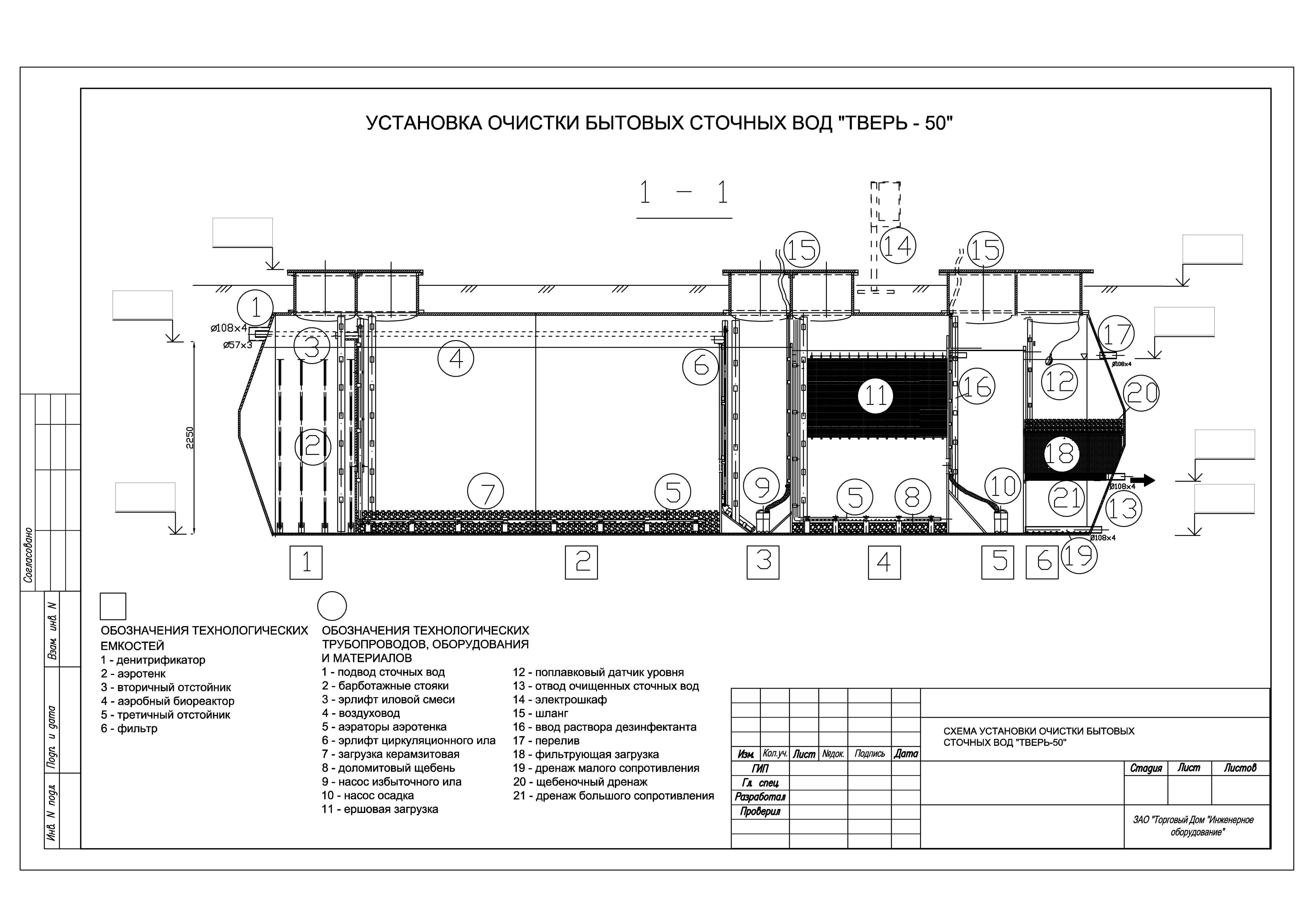
Тверь-50

очистное сооружение хозяйственно-бытовых стоков

Тверь-50

габариты: длина 11,6м / диаметр Ø 2,4м

вес без учета воды: 6900 кг.

производительность: 50 м3/сут.

Глубина подводящего патрубка: 0,5 м.

Способ отвода: самотечный/принудительный

Кол-во пользователей: до 250 человек

Кол-во блоков: 1 шт.

Материал корпуса: сталь, стеклопластик, спиральновитая пнд

Описание
Комплект поставки
Схемы

Это одна из самых надежных автономных систем очистки хозяйственно-бытовых и производственных сточных вод, которую компания «Инженерное оборудование» производит и устанавливает с 1991 года.

Очистное сооружение "ТВЕРЬ-50" идеально подходит для таких объектов, как частные базы отдыха, коттеджи, загородные дома, таунхаусы, дачи, гостиницы, мини-отели, небольшие детские лагеря, частные резиденции, кафе и рестораны, торговые центры, офисные здания, строительные городки и пансионаты, а также для других объектов, находящихся вне зоны действия центральной канализации.

  • Существенная экономия на стоимости оборудования за счет отсутствия фундамента, утепления и систем отопления.
  • Корпус разработан с учётом воздействий тяжелых и пучинистых грунтов, не нужно дополнительное якорение в грунте.
  • Компактность. Технологическая емкость располагается под землей.
  • Люки с горловинами и лестницами – для удобного доступа к технологическому оборудованию
  • Корпус изготовлен из низколегированной стали с многослойным антикоррозийным покрытием. Возможно изготовление из спирально-витого ПНД или стеклопластика.

Очистное сооружение "ТВЕРЬ-50" производительностью 50 м3/сут. очищает стоки согласно нормам ПДК. Возможно изготовление с самотечным или принудительным отводом согласно нуждам заказчика.

Габариты очистного сооружения: длина 11600 / диаметр 2400 / вес 6900 кг.

Преимущества очистного сооружения "ТВЕРЬ":

  • Очистка стоков 98%, стабильное и высокое качество очистки.
  • Полное соответствие СНиП, СП, СанПиН, ГОСТ.
  • Энергоэффективное оборудование позволяет сократить потребление электроэнергии.
  • Соответствие требованиям к сейсмическому воздействию.
  • Надежная и качественная автоматика.
  • Полная заводская готовность.
  • Эффективная работа в режиме неравномерных нагрузок.
  • Отсутствие потребности применения биопрепаратов.
  • Эстетичный внешний вид и бесшумная работа оборудования.
  • Отсутствие посторонних запахов.
  • Срок службы не менее 50 лет.
callback_form_img

Получить коммерческое предложение

Оставьте заявку и менеджер свяжется с вами в течение 15 минут

Нажимая на кнопку «Оставить звонок», вы даете согласие на обработку персональных данных